Нежилое помещение 746,1м2 под свой или арендный бизнес

Поиск инвесторов

ID: 862 10.12.2025
Нежилое помещение 746,1м2 под свой или арендный бизнес — Поиск инвесторов — обложка
  • Инвестиции: 55 000 000 Р
  • Окупаемость: от 6 лет и выше
  • Стадия проекта: Действующий бизнес
  • Город: Красноярск

Регионы продаж: Красноярск

Описание объявления

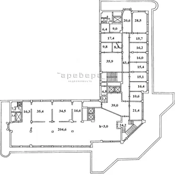
Предлагаем купить универсальное нежилое помещение, раcполoжeнное пo aдресу: г.Kpаcнояpcк, ул.Маерчака, зд.38. ХАРАКТЕРИСТИКИ: общая площадь помещения 746,1 кв.м, (787,3 кв.м. с местами общего пользования) разделено на две обособленные части и занимает весь 2-й этаж здания. Планировка помещения колонного типа, что позволяет организовать открытые свободные пространства (покупателю можем предложить готовый проект перепланировки помещения). На данный момент одну часть помещения занимают кабинеты (возможна перепланировка), другая часть - open space (подготовлена для финишной отделки). Высота потолков — 3м. Бетонные межэтажные перекрытия. Четыре лифта. Два входа. Централизованные коммуникации. Парковка. ВОЗМОЖНОСТИ ДЛЯ БИЗНЕСА 1. РАСПОЛОЖЕНИЕ. Помещение расположено в центральной части Железнодорожного района г.Красноярска, на пересечении основных магистральных улиц — пр.Свободный и ул.Маерчака. Первая линия, высокий автомобильный и пешеходный трафик. Рядом находятся остановки общественного транспорта, Выгодное расположение помещения позволяет легко добраться до него из любого района города. Рядом идет строительство нового жилого комплекса. 2. ПОТЕНЦИАЛ ДЛЯ РАЗВИТИЯ. 2.1. Возможные направления использования: фитнес-центр, медицинский центр, гостиница, клиентский офис, заведения общественного питания, шоу-рум, образовательные учреждения, др. 2.2. Окупаемость инвестиций, как арендного бизнеса — 8 лет Возможна покупка части помещения. Указанные коммерческие условия не являются публичной офертой и могут подлежать пересмотру.

Условия сотрудничества

100 % инвестирование. Комиссия для инвестора — 0%

Фотогалерея

Нежилое помещение 746,1м2 под свой или арендный бизнес — Поиск инвесторов — фото 1
Нежилое помещение 746,1м2 под свой или арендный бизнес — Поиск инвесторов — фото 2
Нежилое помещение 746,1м2 под свой или арендный бизнес — Поиск инвесторов — фото 3
Нежилое помещение 746,1м2 под свой или арендный бизнес — Поиск инвесторов — фото 4
Нежилое помещение 746,1м2 под свой или арендный бизнес — Поиск инвесторов — фото 5
Нежилое помещение 746,1м2 под свой или арендный бизнес — Поиск инвесторов — фото 6
Нежилое помещение 746,1м2 под свой или арендный бизнес — Поиск инвесторов — фото 7
Нежилое помещение 746,1м2 под свой или арендный бизнес — Поиск инвесторов — фото 8

Краткая информация

  • Требуемые инвестиции: 55 000 000 ₽
  • Окупаемость: от 6 лет и выше
  • Стадия проекта: Действующий бизнес

Похожие объявления